product
  當前位置 — 截止閥系列 — 高溫高壓截止閥
產品名稱:

高溫高壓截止閥

所屬分類:

截止閥系列

產品簡介:

集團生產的J41H、J41Y 型高溫高壓截止閥適用于公稱壓力150LB~2500LB,工作溫度為570℃的石油、化工 、水力 、火力電站各種系統的管路中,切斷或接通管路介質。

【產品用途】

集團生產的J41H、J41Y 型高溫高壓截止閥適用于公稱壓力150LB~2500LB,工作溫度為570℃的石油、化工 、水力 、火力電站各種系統的管路中,切斷或接通管路介質。

 

【產品特點】

1、閥門中腔采用壓力自緊式密封結構,密封性能越好。支管兩端為焊接結構。焊接坡口可按標準或用戶要求配接

2、閥瓣、閥座的密封面采用司太立鈷基硬質合金堆焊而成,耐磨、耐高溫,抗擦傷性能好、使用壽命長

3、閥桿經調質和表面氮化處理,有良好的搞腐蝕性和抗擦傷性。

4、閥蓋填料函深度合理,填料加緩蝕劑,密封可靠

 

【執行標準】

設計標準:ASME B16.34

結構長度:SME B16.10

試驗與檢驗:API 598

壓力-溫度:ASME B16.34

產品標識:ASME B16.34

 

【性能參數】

公稱壓力

150LB

300LB

600LB

900LB

1500LB

2500LB

工作壓力(MPa

2.0

5.0

10.0

15.0

25.0

45.0

適用溫度(℃)

570

570

570

570

570

570

適用介質

蒸汽等高溫高壓價值

材料

閥體、閥蓋

鉻鉬釩鋼

閥瓣

鉻鉬釩鋼+堆焊硬質合金

閥座

鉻鉬釩鋼+堆焊硬質合金

閥桿

鉻鉬釩鋼

 

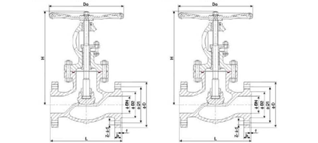
主要外形和連接尺寸】

DN

L

D

D1

D2

f

b

z-Φd

H

D0

150(LB)

DN15

108

90

60.3

35

2

8

4-Φ16

235

125

DN20

117

100

70

43

2

9

4-Φ16

241

125

DN25

127

110

79.4

51

2

9.6

4-Φ16

242

125

DN32

140

115

89

63.5

2

11.2

4-Φ16

280

160

DN40

165

125

98.4

73

2

12.7

4-Φ16

315

160

DN50

203

150

120.7

92

2

14.3

4-Φ19

350

200

DN65

216

180

139.7

105

2

15.9

4-Φ19

370

200

DN80

241

190

152.4

127

2

17.5

4-Φ19

385

250

DN100

292

230

190.5

157.2

2

22.3

8-Φ19

454

250

DN125

356

255

216

185.7

2

22.3

8-Φ22.5

472

355

DN150

406

280

241.5

216

2

23.9

8-Φ22.5

541

355

DN200

495

345

298.5

270

2

27

8-Φ22.5

590

450

DN250

622

405

362

324

2

28.6

12-Φ25.5

780

450

DN300

698

485

438

381

2

30.2

12-Φ25.5

870

500

DN350

787

535

476.3

413

2

33.4

12-Φ28.5

900

600

DN400

914

595

540

470

2

35

16-Φ28.5

1250

600

DN450

-

635

578

533.4

2

38.1

16-Φ32

-

610

300(LB)

DN15

152

95

66.7

35

2

12.7

4-Φ16

241

125

DN20

178

115

82.6

43

2

14.3

4-Φ19

241

125

DN25

203

125

89

50.8

2

15.9

4-Φ19

283

160

DN32

216

135

98.5

63.5

2

17.5

4-Φ19

320

200

DN40

229

155

114.3

73

2

19.1

4-Φ22.5

322

200

DN50

267

165

127

92.1

2

20.7

8-Φ19

345

200

DN65

292

190

149.2

104.8

2

23.9

8-Φ22.5

377

250

DN80

318

210

168.3

127

2

27

8-Φ22.5

464

280

DN100

356

255

200

157.2

2

30.2

8-Φ22.5

490

355

DN125

400

280

235

185.7

2

33.4

8-Φ22.5

614

400

DN150

444

320

270

216

2

35

12-Φ22.5

700

450

DN200

559

380

330.2

270

2

39.7

12-Φ25.5

777

500

DN250

622

445

387.4

323.8

2

46.1

16-Φ28.5

935

550

DN300

711

520

450.8

381

2

49.3

16-Φ32

997

600

DN350

762

585

514.4

412.8

2

52.4

20-Φ32

1058

650

DN400

864

650

571.5

470

2

55.6

20-Φ35

1320

700

600(LB)

DN15

165

95

66.7

35

7

14.3

4-Φ16

245

156

DN20

190

115

82.6

43

7

15.9

4-Φ19

245

161

DN25

216

125

89

50.8

7

17.5

4-Φ19

290

187

DN32

229

135

98.4

63.5

7

20.7

4-Φ19

325

214

DN40

241

155

114.3

73

7

22.3

4-Φ22.5

330

252

DN50

292

165

127

92.1

7

25.4

8-Φ19

345

430

DN65

330

190

149.2

104.8

7

28.6

8-Φ22.5

365

480

DN80

356

210

168.3

127

7

31.8

8-Φ22.5

465

530

DN100

432

275

216

157

7

38.1

8-Φ25.5

520

650

DN125

508

330

266.7

185.7

7

44.5

8-Φ28.5

635

750

DN150

559

355

292.1

216

7

47.7

12-Φ28.5

763

850

DN200

660

420

349.2

270

7

55.6

12-Φ32

845

1050

DN250

787

510

431.8

323.8

7

63.5

16-Φ35

930

1257

DN300

838

560

489

381

7

66.7

20-Φ35

1010

1468

DN350

889

605

527

412.8

7

69.9

20-Φ38

1090

1623

DN400

991

685

603.2

470

7

76.2

20-Φ41

1140

1816

900(LB)

DN50

368

215

165.1

92.1

7

38.1

8-Φ25.5

430

320

DN65

419

245

190.5

104.8

7

41.3

8-Φ28.5

530

320

DN80

381

265

190.5

127

7

38.1

8-Φ28.5

580

360

DN100

457

290

235

157.2

7

44.5

8-Φ32

690

450

DN125

559

350

279.4

185.7

7

50.8

8-Φ35

780

560

DN150

610

380

317.5

216

7

55.6

12-Φ32

890

630

DN200

737

470

393.7

270

7

63.5

12-Φ38

1240

720

DN250

838

545

470

323.8

7

69.9

16-Φ38

1651

760

1500(LB)

DN65

419

245

190.5

104.8

7

41.6

8-Φ28.5

530

400

DN80

470

265

203.2

127

7

47.7

8-Φ32

590

450

DN100

546

310

241.3

157.2

7

54

8-Φ35

710

500

DN125

673

375

292.1

185.7

7

73.1

8-Φ41

780

560

DN150

705

395

317.5

215.9

7

82.6

12-Φ38

904

630

DN200

832

485

393.7

270

7

92.1

12-Φ45

1140

560

2500(LB)

DN65

508

265

196.8

104.8

7

57.2

8-Φ32

740

400

DN80

578

305

228.6

127

7

66.7

8-Φ35

780

450

DN100

637

355

273

157.2

7

76.2

8-Φ41

860

560

DN125

794

420

323.8

185.7

7

92.1

8-Φ48

930

630

DN150

914

485

368.3

216

7

108

8-Φ54

1070

560

DN200

1022

550

438.2

270

7

127

12-Φ54

1180

630

 

【結構圖片】


在線咨詢

如果您對報價或合作有任何疑問,請隨時通過以下電子郵件與我們聯系 lg@cnlgvalve.com 或使用以下查詢表格。 我們的銷售代表將在24小時內與您聯系。 感謝你對我們產品感興趣。